Head Office: 07801 745224

English

Française

Deutsch

Modular Housing and Hotels

tectainer Modular Homes

Datasheets on this page

tectainer Homes

Download PDF version of tectainer Homes Brochure 2009

tectainer Homes - Conceptual Design

Modular Domestic Homes
  • Steel and Timber construction
  • Designed to meet UK, Euro, NZ or Australian Standards
  • Environment Friendly
  • Double Insulation Values req. by the standards and building codes
  • Up to 4 floors high with 8ft, 9ft and 10 ft high ceilings internally
  • Flat roof or pitched roof trusses supplied as a kit set
  • Site foundation and site preparation design supplied
  • Site assembly ready to decorate in 5 days
  • Pre-fitted with plumbing and hi-tech electrical systems
  • Luxury fittings, materials and finishes.
  • Pre-manufactured Hardwood decks and balconies
  • Lifetime construction guarantee (see ST and C)

tectainer Homes - Bathroom

tectainer Homes - Kitchen

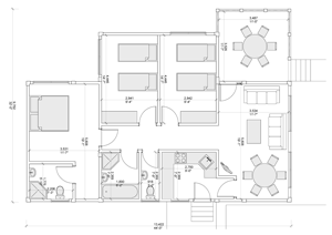
tectainer Homes - 2 Bed Plan

tectainer Homes - 3 Bed Plan

tectainer Homes - Elevations

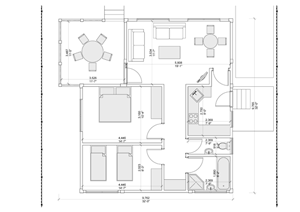
tectainer Homes - 2 Bed Bungalow

tectainer Homes - Foundations

tectainer Homes - Completed

© tectainer

tectainer Modular Homes

Download PDF version of tectainer Modular Homes

tectainer Modular Homes - Concept and design

Hurricane Proof Homes that arrive on a truck ready to live in
  • Designed to meet local regulations
  • Any configuration of room layout possible
  • Up to 12 ft high ceilings
  • Flat roof with roof balcony or pitched supplied as a kit set
  • Quick assembly due to modular construction
  • Pre-fitted with plumbing and electrical system
  • Luxury or budget builds
  • tectainer Homes - Satge 1: Layout Based on 20ft / 40ft Blocks

    1: Layout Based on 20ft / 40ft Blocks

  • tectainer Modular Homes - Stage 2: 4000 sq ft Pre-Assembled in Factory

    2: 4000 sq ft Pre-Assembled in Factory

  • tectainer Modular Homes - Stage 3: Fit Out using Finest Materials

    3: Fit Out using Finest Materials

  • tectainer Modular Homes - Stage 4: Fit the Windows

    4: Fit the Windows

  • tectainer Modular Homes - Stage 5: Build Kitset Balconies

    5: Build Kit set Balconies

  • tectainer Modular Homes - Stage 6: Seperate and Ship to Site

    6: Separate and Ship to Site

  • tectainer Modular Homes - Stage 7: Re-Assemble on Site

    7: Re-Assemble on Site

  • tectainer Modular Homes - The Fully Clad Finished Product

    The Fully Clad Finished Product

© tectainer


"Putting something back"
Our companies are actively involved in fundraising for and supporting children with cancer in China